209m2 + 4 slpk


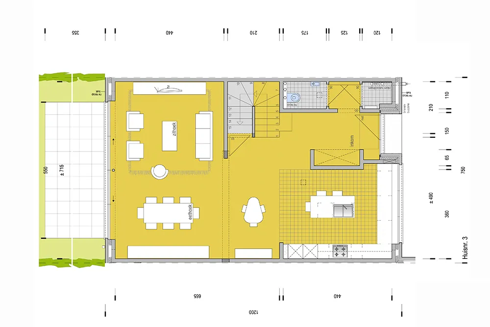
Deze moderne gezinswoning (plat dak) maakt deel uit van het project ‘Moore Houses’ www.moorehouses.be . Dit project is gelegen in de dorpskern, op de hoek van de Wezembeeklaan en de Louis Marcelislaan en bestaat uit de realisatie van 6 nieuwbouwwoningen. De woningen van ‘Moore Houses’ worden gerealiseerd op een eigen privé bouwperceel. Het betreft hier woning 3 uit het project, een gesloten bebouwing van ca. 209m2 groot. Deze woning bestaat uit een voortuin, vervolgens een ruime inkomhal met apart gastentoilet en vestiaire. Een leefruimte met open keuken die toegang geeft tot tuin met terras. Boven zijn er 4 slaapkamers (dressing aan masterbedroom), 2 badkamers en een tweede toilet. De woning heeft ook een kelder met berging/wasplaats. De woningen zijn aan de voorgevel bereikbaar via de voorliggende straat en aan de achterzijde via een wandel – fietspad dat toegang geeft tot de tuin en het tuinhuis. Bij deze woning hoort een garage met poort in de ondergrondse parking van het nabijgelegen gebouw ‘Fontana’. Er wordt een volledig afgewerkte woning aangeboden, inclusief keuken, badkamer, vloerbekleding, etc ... De tuinzones worden ingericht met grasperken en tussen en rondom de tuinen worden hagen en draadafspanningen voorzien.